X
Brochure
Onze mantelzorg oplossingen rustig bekijken?
Brochure aanvragen

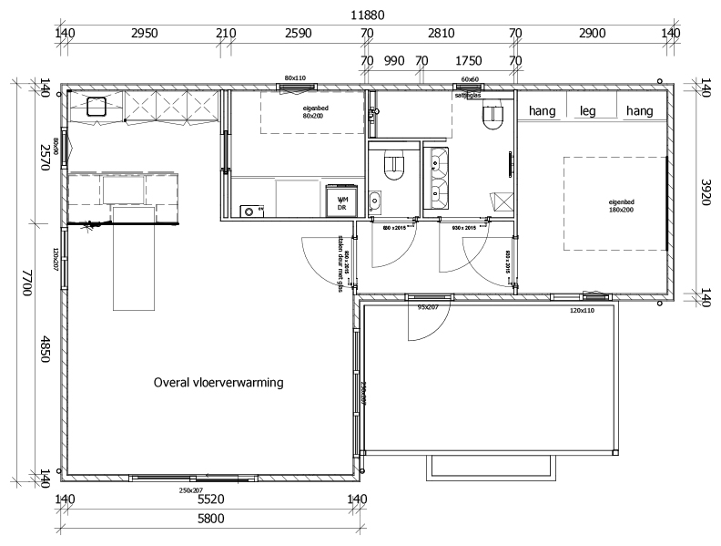
Type Condor

HOME Mantelzorgwoningen Type Condor

Portfolio

Type Condor

Voor al onze woningen geldt:

  • Uitvoering, indeling en grootte in overleg met klant
  • We kunnen energieneutraal bouwen, gasloos en met energielabel
  • Materiaal keuze ( veel mogelijkheden in afwerking, kleur- en materiaalkeuze )
  • Onze woningen worden compleet, sleutelklaar opgeleverd



Bestanden [klik op de link om te downloaden]:
Download bouwtekening_condor.pdf




Vergunningscheck

Vanuit de overheid is besloten om het plaatsen van een verplaatsbare mantelzorgwoning op uw perceel makkelijker te maken. Onder bepaalde voorwaarden, zoals in het bezit zijn van een indicatie voor mantelzorg, mogen deze zorgwoningen vergunningsvrij op uw perceel worden geplaatst. Wij bouwen deze verplaatsbare vergunningsvrije mantelzorgwoningen voor u conform bouwbesluit, en houden daarbij zo veel mogelijk rekening met uw persoonlijke woonwensen. Maar in sommige gevallen hebt u toch een vergunning nodig.
Brochure

BROCHURE AANVRAGEN

Ontvang meer informatie over onze mantelzorgwoningen.
Vraag geheel vrijblijvend onze brochure aan.

ONTVANG ONZE GRATIS BROCHURE

Brochure aanvragen